Swimspalock

Bra swimspalock, Sannra™, för många olika fabrikat

När vintern slår till ska swimspalock isolera effektivt och hålla dina uppvärmingskostnaden till ett minimum. Ett tjockt tungt snötäcke får inte deformera locket och regnvatten ska rinna av. Vi bygger därför våra swimspapalock med största noggrannhet i alla detaljer och kan av detta skäl lämna garanti i två år.

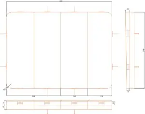
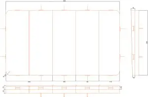
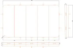
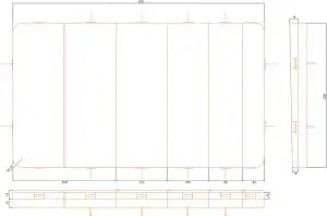
Mått på ditt Swimspa

Mät till den yttre kanten av ditt swimspa. Den streckade linjen indikerar vart locket viker sig.
Sida 1 i mm (A)
Sida 2 i mm (B)

Hörnradie på ditt swimspa

Mät i en rak linje från där hörnet börjar svänga till där det slutar, vinkelrätt (i 90°) mellan sidorna
Hörnradie i mm (Radie)

Mått på ditt spabad

Det här är måtten du anget på ditt spabad
A-Sida
0000 mm
B-Sida
0000 mm
Hörnradie
0000 mm
Resultat
Högsta kvalitet
Bra material
Fri leverans
Alltid för spalock
2 års garanti
Handla tryggt
Öppet köp
30 dagar
Hur hittar jag rätt swimspalock?

Vi anser att bästa sättet är att mäta ditt Swimspa, inte att mäta det gamla locket. Mät noggrant efter våra instruktioner så kommer nya swimspalocket att passa perfekt. Tänk på att en extra centimeter kan göra locket lite lättare att lägga på.  Detaljerade instruktioner för hur du mäter hittar du här.

Swimspalock
Kvalitet rakt igenom

Isolerblock 5 till 4 tums tjocklek. Unikt för våra swimspalock är att dessa sluttar från långsida till långsida och ger dig därför högsta värmeisolering jämförbart med traditionella swimspalock.

Om våra lock

Konstruktionsdetaljer

Tjocklek isolerblock högsta del
Tjockleken, (snittet), och hög densitet, ger bra isoleringsförmåga.
5 tum(ca 127 mm )är ett bra värde, som ändå håller lockets vikt hanterbar.
Tjocklek isolerblock lägsta del
Skall vara något lägre än högsta punkt med tanke på vattenavrinning.  4 tum (ca 102 mm)
Densitet isolerblock
Ju högre densitet desto bättre. 25 kg / m³ är ett bra värde.
Förstärkning mittsektion
Stål överlägset aluminium i styrka och vridstyvhet. 2 x galvad U-balk stål.
Placerad av förstärkning
Undvik inspårade förstärkningar som lätt kan ge skador på fuktspärren. Inbäddad i isolerblocket.
Typ av fuktspärr
Plastfilm belagd med aluminium. Överlägsen fukt och kemikaliespärr. Vakumsugen, varmsvetsad.
Isolering i mittskarven
Ofta finns bara 2 små kuddar i ytterkant av
mittskarven, vilket innebär värmeförluster.
Fodral material

Marinvinyl Premium
Svensk Garanti

2 års Garanti enligt specifikation.
Öppet köp

30 dagar.

Konstruktionen består av isolerblock med en densitet på 25kg per kubikmeter och förstärkning sker via galvad U-balk av stål (stål är överlägset aluminium i styrka och vridstyvhet) som är inbäddad i isolerblocket vilket gör att den inte kan skada fuktspärren. Fuktspärren är i sin tur vaccumsugen, varmsvetsad och gjord i aluminiumbelagd plastfilm.

Fuktspärrens funktion och betydelse för ett spalock är värt att kommentera ytterligare. Ett av de vanligaste problemen med spalock är att fuktspärren ger vika och att locket därmed tar in vatten och inom kort väger det 150kg. Fuktspärren är därför av oerhört central betydelse. Vi bestämde oss därför för att erbjuda marknadens absolut mest pålitliga fuktspärr och vår övertygelse är att vi nu nått dit.

Fuktspärren tillverkas av Mylar, som är ett material av specialbehandlad polyester och aluminiumfolie. Bara materialkostnaden för detta material utgör mer 15% av totalkostnaden för locket, men det är det värt! Fråga våra 1000-tals nöjda kunder genom åren!

Marinvinylen som omfamnar hela konstruktionen är av högsta kvalitet samt anti-UV och anti mögelbehandlat redan på fabriken. För maximal hållbarhet är skarven på vinylen slutligen isolerad längs hela spalockets längd med 2 små och en lång kudde för att skapahållbarhet och minimera värmeförluster.

Sömmar

Sömmarnas kvalitet påverkar, av naturliga skäl, lockets livslängd. Våra spalock är konstruerade med en dubbeltvinnad polyestertråd som i princip är ”outtröttlig”. Vid val av billigare konstruktioner och materialval finns risk att handtag och sömnad ger med sig med tiden. Oro för liknande missöden är obefogad vid köp av våra Sannra™-spalock.

Dragkedjor

Våra YKK-tillverkade dragkedjor på Sannra™-spalocken är avsedda för tunga produkter. Dessa kraftiga dragkedjor är beständiga emot korrosion, rost och står emot kontakt med kemikalier ifrån spabadet.

Swimspalock Mått